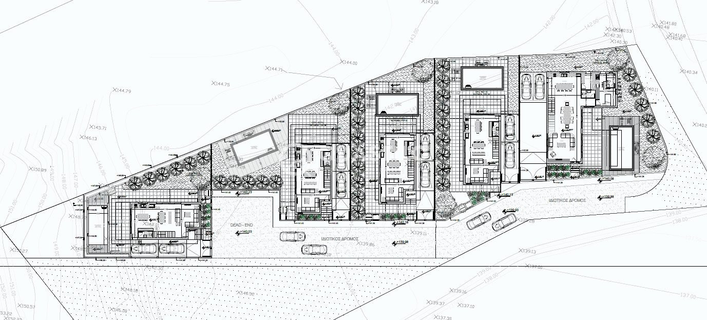
5 Residential Plots in Agios Athanasios - 2236m²

€1,695,000+VAT

Overview

  • Plot: 2236 m2
  • Subcategory: Residential
Residential plots for sale with planning permit application in Agios Athanasios, one of Limassol’s most prestigious areas. Planning zone: Κα9, Build Factor: 40%, Cover Factor: 25%. If you are looking for land development or land for investment, this opportunity is ideal.
Plot 1: 541 m²
Plot 2: 404 m²
Plot 3: 404 m²
Plot 4: 404 m²
Plot 5: 483 m²

Allowances

ZoneCover FactorBuild FactorMax HeightMax Floors
Κα925%40%13.5 m3

Features

  • Near amenities
  • Quiet area

Distances

  • Amenities: 300 m
  • Airport: 60 km
  • Sea: 3.5 km
  • Public transport: 100 m
  • Schools: 500 m
  • Resort: 3.5 km

Contact

Thank you for your email!